12667 Intermezzo WaySan Diego, CA92130
Due to the health concerns created by Coronavirus we are offering personal 1-1 online video walkthough tours where possible.




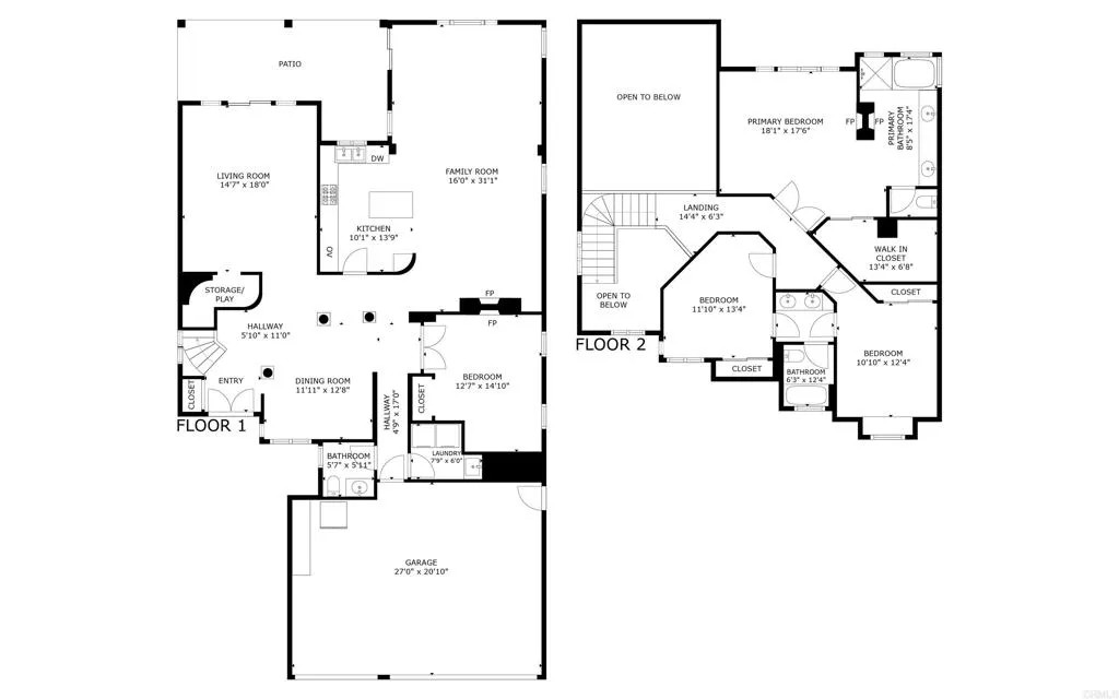
Nestled in one of Carmel Valleys most desirable neighborhoods, this home makes a striking first impression with lush tropical curb appeal and a warm, inviting presence. Mature palms, vibrant bougainvillea, sugar apple, and dragon fruit frame a private front courtyard, creating a peaceful sense of arrival. The grand dual door entry, accented by clerestory windows above, welcomes you inside as natural light fills the space and highlights the homes architectural design. The entry opens to a sweeping spiral staircase and elevated catwalk, creating a strong architectural focal point filled with natural light. The formal dining room features circular pillars and a statement chandelier, positioned to overlook the front courtyard. Hardwood floors lead into the expansive living room, where soaring two story ceilings and oversized windows create a bright, open space with natural flow to the backyard. The kitchen offers a warm and functional layout with cherry toned cabinetry, granite countertops, and a center island suited for everyday use. Stainless steel appliances include a KitchenAid wall oven, convection microwave, and a PacAir hood vent, bringing both performance and style. The kitchen opens seamlessly to the family room, creating a natural flow for everyday living. The expanded family room serves as the central gathering space, enhanced by motorized skylights with rain sensors, large picture windows, and direct access to the backyard. Anchored by a dual-sided fireplace, it creates a comfortable setting for hosting, relaxing, and daily living. Additional first floor spaces include a central bedroom with a fireplace, a dedicated laundry room with a utility sink and storage, a powder room, and a three-car garage with a built-in workbench. Upstairs, the primary suite offers a peaceful retreat with vaulted ceilings, abundant natural light, and serene backyard views. A dual-sided fireplace adds a touch of luxury between the bedroom and the spa inspired bathroom, complete with dual vanities, a soaking tub, and an oversized walk-in shower finished with decorative tile. Two additional bedrooms share a Jack and Jill style bathroom, with a dual vanity area separate from the shower and bath, allowing for added privacy and ease of use. The backyard continues the homes inviting lifestyle with a covered pergola, large patio, and a turf area that doubles as a putting green or play space. A cascading rock fountain and mature tropical landscaping provide privacy and a resort like setting, complemented by a diverse collection of fruit trees including red and white dragon fruit, passion fruit, loquat, eggfruit, lemon, pomegranate, and fig, along with Japanese maple, palms, and bird of paradise. Located in a rare Carmel Valley pocket near the Bay Club, with no HOA and low Mello-Roos, this home offers exceptional access to top rated schools, parks, shopping, dining, and coastal amenities. Recent improvements include updated roof underlayment in 2025, adding long term value and peace of mind, making this an outstanding opportunity in one of North Countys most sought-after communities.
| 6 hours ago | Listing updated with changes from the MLS® | |
| yesterday | Listing first seen on site |

This information is deemed reliable but not guaranteed. You should rely on this information only to decide whether or not to further investigate a particular property. BEFORE MAKING ANY OTHER DECISION, YOU SHOULD PERSONALLY INVESTIGATE THE FACTS (e.g. square footage and lot size) with the assistance of an appropriate professional. You may use this information only to identify properties you may be interested in investigating further. All uses except for personal, non-commercial use in accordance with the foregoing purpose are prohibited. Redistribution or copying of this information, any photographs or video tours is strictly prohibited. This information is derived from the Internet Data Exchange (IDX) service provided by San Diego MLS®. Displayed property listings may be held by a brokerage firm other than the broker and/or agent responsible for this display. The information and any photographs and video tours and the compilation from which they are derived is protected by copyright. Copyright © 2026 San Diego MLS®.
Last checked 2026

Did you know? You can invite friends and family to your search. They can join your search, rate and discuss listings with you.